Линия для переработки кабеля MGS-800-01 (2*15)
Данная линия выполняется в двух вариантах исполнения:
1) С пре-шредером 400 (2*11 кВт)
2) С пре-шредером 600 (2*15 кВт)
Также по предпочтению можно изменить мощность пре-шредера
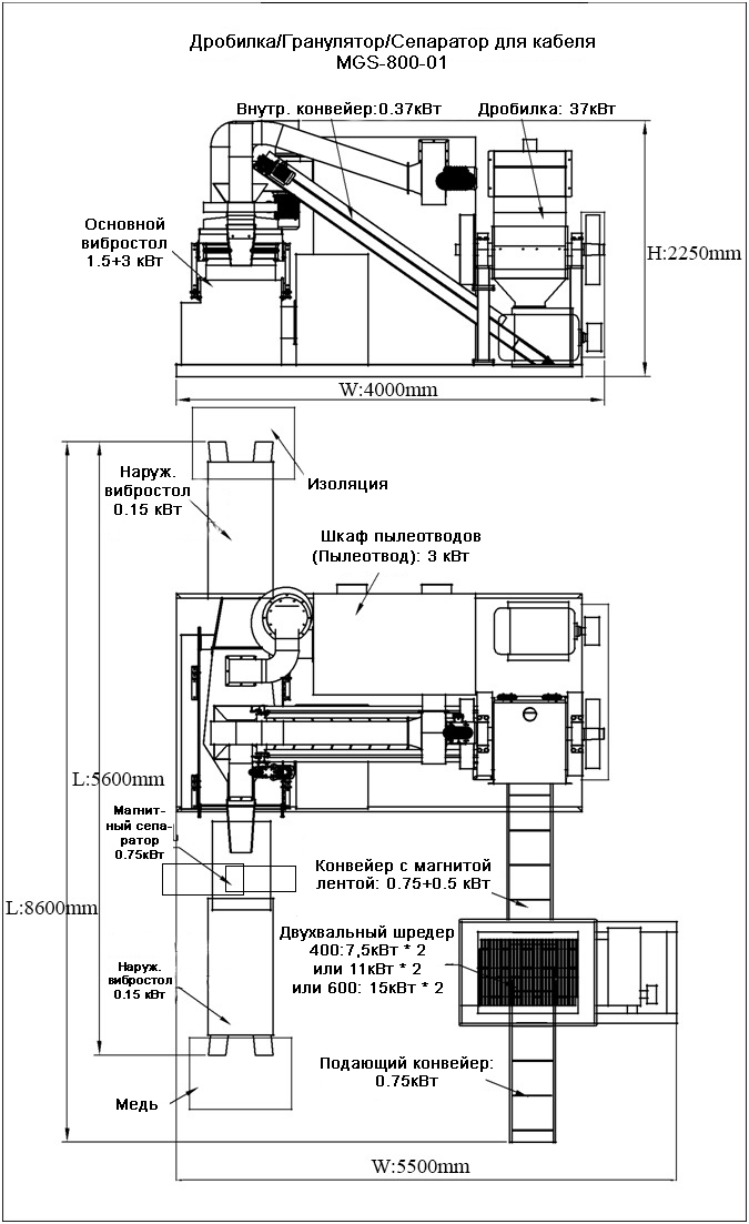
Установку для переработки кабеля MGS-800-01 можно назвать мини-заводом, который обрабатывает изделия из цветных металлов. В нее уже входит двухвальный пре-шредер, а также два загрузочных конвейера и магнитный сепаратор для отделения черных металлов. Это минимизирует время для подготовки сырья и на практике процесс сортировки исключается. Кроме пре-шредера, в данную линию интегрируется дробилка с повышенной производительностью 37 кВт. Это дает возможность обрабатывать не только кабеля большого сечения, но и изделия из цветных металлов, производительность 500-800 кг/ч. Установка отлично подходит для предприятий по ломопереработке, в которых месячный оборот кабеля не превышает 150 тонн.
Принцип работы:
- С помощью конвейера лом поступает в пре-шредер для измельчения.
- Измельченный материал попадает на ленточный транспортер, доставляется до дробилки, но при этом происходит удаление частиц черного металла с помощью магнитной ленты.
- Далее заранее измельченный материал попадает в дробилку и там окончательно дробится.
- Измельченный материал попадает на сепаратор. За счет воздушно-вибрационной сепарации изоляция отделяется от металлической сечки.
Производительность с пре-шредером MRS-400: 450-500 кг/ч, максимальная производительность 650-700 кг/ч если 80% медный кабель
Производительность с пре-шредером MRS-600: 500-600 кг/ч, максимальная производительность 700-750 кг/ч если 80% медный кабель
Рабочий Процесс
Комплектация:
Вы можете выбрать один из следующих вариантов оплаты:
- Оплата наличными - при при самовывозе с нашего склада.
- Наложенный платёж - при получении заказа через транспортную компанию или Почту России
- Безналичный расчёт - оплата по счёту для юридических лиц.
- Электронные системы - оплата на сайте. Вас перенаправит на страницу платежного сервиса, где, следуя инструкциям, необходимо заполнить форму.
Наш интернет-магазин предлагает несколько вариантов доставки:
- самовывоз со склада;
- транспортная компания;
- почта России.
Самовывоз со склада
Вы можете забрать товар с нашего склада по адресу: Ростовская область, г. Новочеркасск, ул. Газетная, 21.
Транспортная компания
Мы сотрудничаем с различными транспортными компаниями: ПЭК, СДЭК, Деловые линии, ЖелДорЭкспедиция, Энергия, Кит, ГлавДоставка, Возовоз, DPD и другими. Упаковка и доставка до нашего терминала ТК в течение 1 дня за наш счёт. Доставка в регионы до терминала или до адреса оплачивается по тарифам ТК покупателем или продавцом в зависимости от размера заказа. Стоимость доставки от 200 рублей, срок доставки от 1 дня.
Почта России
Почтовыми отправлениями (до 20 кг) по всей России. Оплата при получении. Стоимость доставки от 350 рублей, срок доставки от 3 дней.
Перед оплатой вы можете оценить состояние коробки (не вскрывая): вес, целостность. Если вам кажется, что заказ не соответствует параметрам или коробка повреждена, попросите сотрудника почты составить акт о вскрытии. Вскрывать коробку самостоятельно вы можете только после того, как оплатили заказ.
Возможность доставки интересующего Вас товара выбранным способом можно уточнить у менеджера магазина.
